Drywall Applications Misconception
There’s a common misconception that, in drywall applications, both layers of drywall have to slip within the frame. Per NFPA 80, only one layer of drywall is required to be within the frame. We contacted the testing and certification company UL to provide more information and help clear this up.
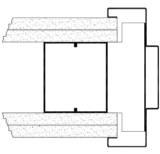
All three images above represent drywall application
that are compliant with a fire rated assembly
UL requires that at least one layer of drywall be inserted at a minimum of one-half inch into the frame throat on each side of a steel or wood stud.
For walls with fire durations greater than one hour where multiple layers of drywall are attached to the studs; the additional layers of drywall can be hung so that the additional layer(s) is (are) butted up directly against either the frame’s return or the stud anchor located in the frame’s throat .
This method of installation is specific to those frames provided with steel or wood stud type drywall anchors. It is UL’s experience that the single layer inserted into the frame on each side of the stud is sufficient to maintain the hourly rating of the door opening.
