Drawings
Looking for industry-standard door and frame details? Our downloadable resources include a comprehensive collection of door models compatible with popular platforms like Adobe, Revit and SketchUp. Also available are a selection of technical CAD drawings in AutoCAD format featuring standard door profiles, wall profiles, anchor details and more.
Whether you’re designing a project from scratch or integrating components into an existing model, these files offer the accuracy and flexibility you need. All drawings are also available in easy-to-share PDF format for quick reference and collaboration. We recommend that the individual manufacturer’s specifications always be reviewed to confirm compliance with these drawings.
Models
Single Steel Doors
Steel doors are availabile as singles, pairs or a variety of elevations that are appropriate for many different applications
Pair Steel Doors
Steel Door Elevations
Single Wood Doors
Hollow metal frames are extremely versatile and suitable for many different door materials including wood and fiberglass
Pair Wood Doors
Wood Door Elevations
Details
Standard Profiles
Flush frame and wall cross-sections
Wall Conditions
Drywall and masonry cross sections
Anchor Details
Wall cross sections with typical anchor conditions
Corner Details
Knock down and welded corner assemblies
Other Drawings
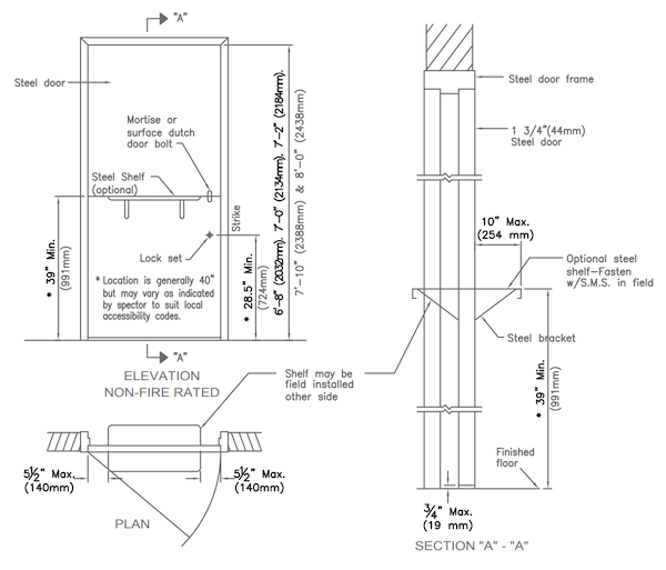
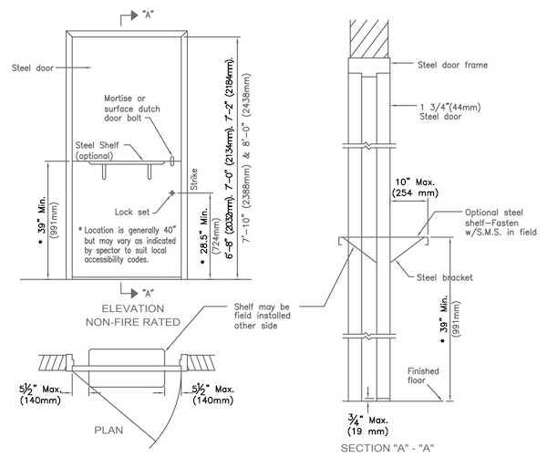
Hardware locations and Dutch doors

















































































